Loading...
SPORT Stadl Hainburg
Restaurants & Bars

SPORT Stadl Hainburg

  • Year: 2018
  • Area: 180
  • Location: Frankfurt, Germany
  • Intervention: Conceptual design, main project, complete individual furnishing
  • Phase: Completed

Germany is well known for its sport and beer lovers, so sport bars and sport pubs are very present in people's everyday life there. We recently took care and made cusomised interior design for one of them in Hainburg, Frankfurt am Main, providing also a complete furnishing and custom handmade furniture, all crafted by our factory Linea Milano.

Starting with the investor's wish to use as much wood as possible in the interior on the one hand, and to stay simple enough on the other. We adopted these wishes and made a simple but stylish and modern solution at the same time.

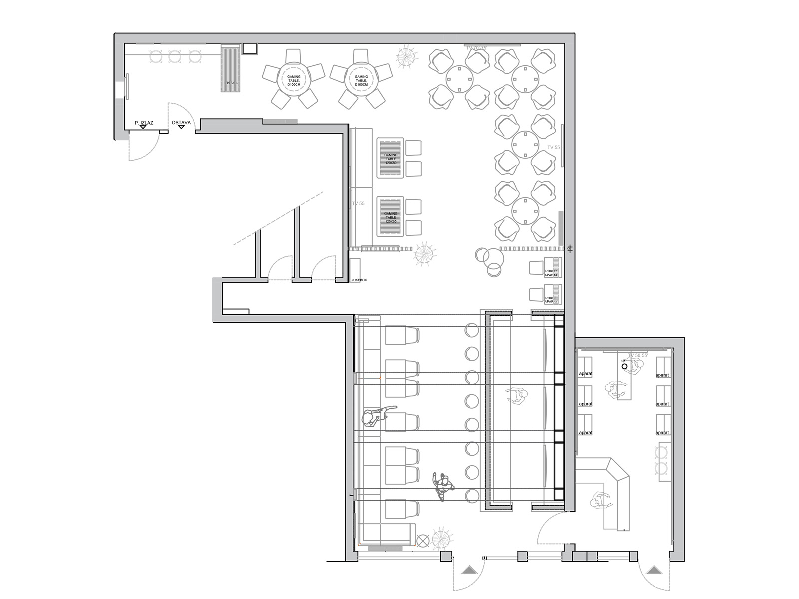
The whole area is divided into 2 parts - 4 functional areas: The first one is pub with the high upholstered benches and bar tables. The second one is area with more comfortable sitting and bigger tables. The third zone is for gaming - an area with interactive game and poker tables with touch screens, pinball, dart etc. The fourth and the last one is completely separated area - sports betting centre.

SPORT Stadl Hainburg

SPORT Stadl Hainburg

SPORT Stadl Hainburg

SPORT Stadl Hainburg

SPORT Stadl Hainburg

SPORT Stadl Hainburg

SPORT Stadl Hainburg

SPORT Stadl Hainburg

SPORT Stadl Hainburg

SPORT Stadl Hainburg

SPORT Stadl Hainburg

SPORT Stadl Hainburg

SPORT Stadl Hainburg

SPORT Stadl Hainburg

SPORT Stadl Hainburg